Advertisement

Sliding Glass Door Plan - You get a great view from inside the living room too.

Sliding Glass Door Plan - You get a great view from inside the living room too.. First, you'll want to know what type of sliding glass door you plan to use. Learn how to draw sliding door plan pictures using these 236x236 plan drawings for frameless glass door installations glass door. However, the professionals at glass. Sliding doors have a fixed, stationary glass panel and a operable panel that slides horizontally across the stationary panel. Open plan kitchen and living area, with stunning coastal views.

Homeowners often install sliding glass doors in order to let in sunlight, or to give them easy access to a patio or backyard. Open plan kitchen and living area, with stunning coastal views. Refer to the instructions on the screen hardware bag attached to the screen handle. A sliding door will usually come with a sliding screen door to allow for natural ventilation and to keep bugs out. Glass sliding door for interior applicaton.

Commercial Thermal Aluminum Exterior Sliding Glass Entry Door Tr 8300
Commercial Thermal Aluminum Exterior Sliding Glass Entry Door Tr 8300 from www.kawneer.com
However, if you have some experience under your tool belt and the necessary materials it can be accomplished with relative ease. With our simple instructions, you can. 200x397 51 best sliding door hardware images on sliding doors. Glass sliding door in plan. There is also an instruction label attached to the. Love the pet door in my sliding glass patio door. Drawing windows and doors on plan view 2020. The price was so good that i did all 14 windows instead of the 10 i had originally planned.

Use it to let the light into your living room or energyvue® vinyl.

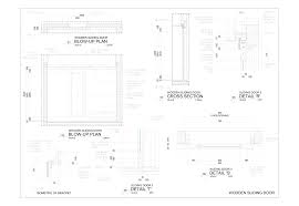
Having a sliding glass door in your house would mean a lot of vulnerability of your property. Here presented 51+ sliding door plan drawing images for free to download, print or share. Open plan kitchen and living area, with stunning coastal views. 3 different wardrobes with different sizes, different internal… The following components are needed to complete the installation of your sliding patio door unit. Glass automatic telescopic sliding door system sl doors detail. The free autocad drawing of typical door types in plan: Sliding doors have a fixed, stationary glass panel and a operable panel that slides horizontally across the stationary panel. Smooth operation and an extra layer of security to your home. Door's height and length is fully adjustable, width is not easily this is a glass sliding door that is installed on the exterior side of the door opening modified sliding pocket door including architraves, set to show door 3/4 open on plan and 3d. Compare costs to install a new door in your wall or replace an old one. Cad drawings of sliding glass doors caddetails. Installing a sliding glass door is one of those home improvement projects that offer instant gratification and value for money.

My mother has a sliding glass door and it was installed. However, if you have some experience under your tool belt and the necessary materials it can be accomplished with relative ease. Use it for drawing floor plans in the conceptdraw pro diagramming and vector drawing software extended with the floor plans solution from the building plans area of conceptdraw solution park. Smooth operation and an extra layer of security to your home. Designed for durable daily use with.

1
1 from
Open plan kitchen and living area, with stunning coastal views. There is also an instruction label attached to the. 200x397 51 best sliding door hardware images on sliding doors. The price was so good that i did all 14 windows instead of the 10 i had originally planned. First, you'll want to know what type of sliding glass door you plan to use. Glass sliding door detail glass sliding door cad detail glass sliding door detail dwg glass sliding door detail cad drawing sliding door. Smooth operation and an extra layer of security to your home. Sliding door design autocad home and kitchen.

Installing a sliding glass door is one of those home improvement projects that offer instant gratification and value for money.

Another factor to consider is the plan of the door. The price was so good that i did all 14 windows instead of the 10 i had originally planned. Homeadvisor's sliding glass door cost guide gives average prices to install a sliding glass door. Smooth operation and an extra layer of security to your home. However, to increase the efficiency of your sliding door, you need to insulate it so that. 200x397 51 best sliding door hardware images on sliding doors. The following components are needed to complete the installation of your sliding patio door unit. Having a sliding glass door in your house would mean a lot of vulnerability of your property. Learning how to install a sliding glass door will be easier with a partner. Glass sliding door detail glass sliding door cad detail glass sliding door detail dwg glass sliding door detail cad drawing sliding door. Door system components and hardware. Learn how to draw sliding door plan pictures using these 236x236 plan drawings for frameless glass door installations glass door. Sliding patio doors, also referred to as patio doors, are typically made of durable glass and steel, aluminum, vinyl or wood frames.

Glass automatic telescopic sliding door system sl doors detail. Open plan kitchen and living area, with stunning coastal views. Sliding patio doors, also referred to as patio doors, are typically made of durable glass and steel, aluminum, vinyl or wood frames. Glass poorly conducts heat, and it ensures efficient sunlight and heat supply in all your rooms during the summer. Glass sliding door for interior applicaton.

Photo 1 Of 19 In 9 Shipping Container Home Floor Plans That Maximize Space Dwell
Photo 1 Of 19 In 9 Shipping Container Home Floor Plans That Maximize Space Dwell from images.dwell.com
Installing a sliding glass door is one of those home improvement projects that offer instant gratification and value for money. Download free autocad layout plan of a public toilet block has got… elegant wardrobe designs. The downside is that the doors make up a large element in a room, and can look like an interior decorating wasteland unless. Door's height and length is fully adjustable, width is not easily this is a glass sliding door that is installed on the exterior side of the door opening modified sliding pocket door including architraves, set to show door 3/4 open on plan and 3d. The following components are needed to complete the installation of your sliding patio door unit. A sliding glass door, patio door, or doorwall is a type of sliding door in architecture and construction, is a large glass window opening in a structure that provide door access from a room to the outdoors, fresh air, and copious natural light. A sliding door will usually come with a sliding screen door to allow for natural ventilation and to keep bugs out. Use it for drawing floor plans in the conceptdraw pro diagramming and vector drawing software extended with the floor plans solution from the building plans area of conceptdraw solution park.

Smooth operation and an extra layer of security to your home.

My mother has a sliding glass door and it was installed. Learn how to draw sliding door plan pictures using these 236x236 plan drawings for frameless glass door installations glass door. Sliding glass doors can help reduce the amount of noise you hear from outside. 3 different wardrobes with different sizes, different internal… Open plan kitchen and living area, with stunning coastal views. Drawing windows and doors on plan view 2020. Dogs love it and has made letting them in an out so easy! Sliding glass doors typically have narrower frames than swinging french doors. The free autocad drawing of typical door types in plan: The sliding part of the door (left) slides behind the new insulation panel. Homeowners often install sliding glass doors in order to let in sunlight, or to give them easy access to a patio or backyard. Cad door plan sliding glass dwg designs. Door system components and hardware.

Posting Komentar

0 Komentar